4939 Floramar Terrace 904, NEW PORT RICHEY, FL 34652
Active
Property Photos
Would you like to sell your home before you purchase this one?
Priced at Only: $1,700
For more Information Call:
Address: 4939 Floramar Terrace 904, NEW PORT RICHEY, FL 34652
Property Location and Similar Properties
- MLS#: W7883186 ( Residential Lease )
- Street Address: 4939 Floramar Terrace 904
- Viewed: 7
- Price: $1,700
- Price sqft: $2
- Waterfront: Yes
- Wateraccess: Yes
- Waterfront Type: Canal - Saltwater
- Year Built: 1975
- Bldg sqft: 1050
- Bedrooms: 2
- Total Baths: 2
- Full Baths: 2
- Days On Market: 3
- Additional Information
- Geolocation: 28.2305 / -82.7323
- County: PASCO
- City: NEW PORT RICHEY
- Zipcode: 34652
- Subdivision: Sea Castle Condo
- Building: Sea Castle Condo
- Elementary School: Mittye P. Locke
- Middle School: Gulf
- High School: Gulf
- Provided by: RE/MAX MARKETING SPECIALISTS
- Contact: Rebecca Huffsmith
- 727-853-7801

- DMCA Notice
-
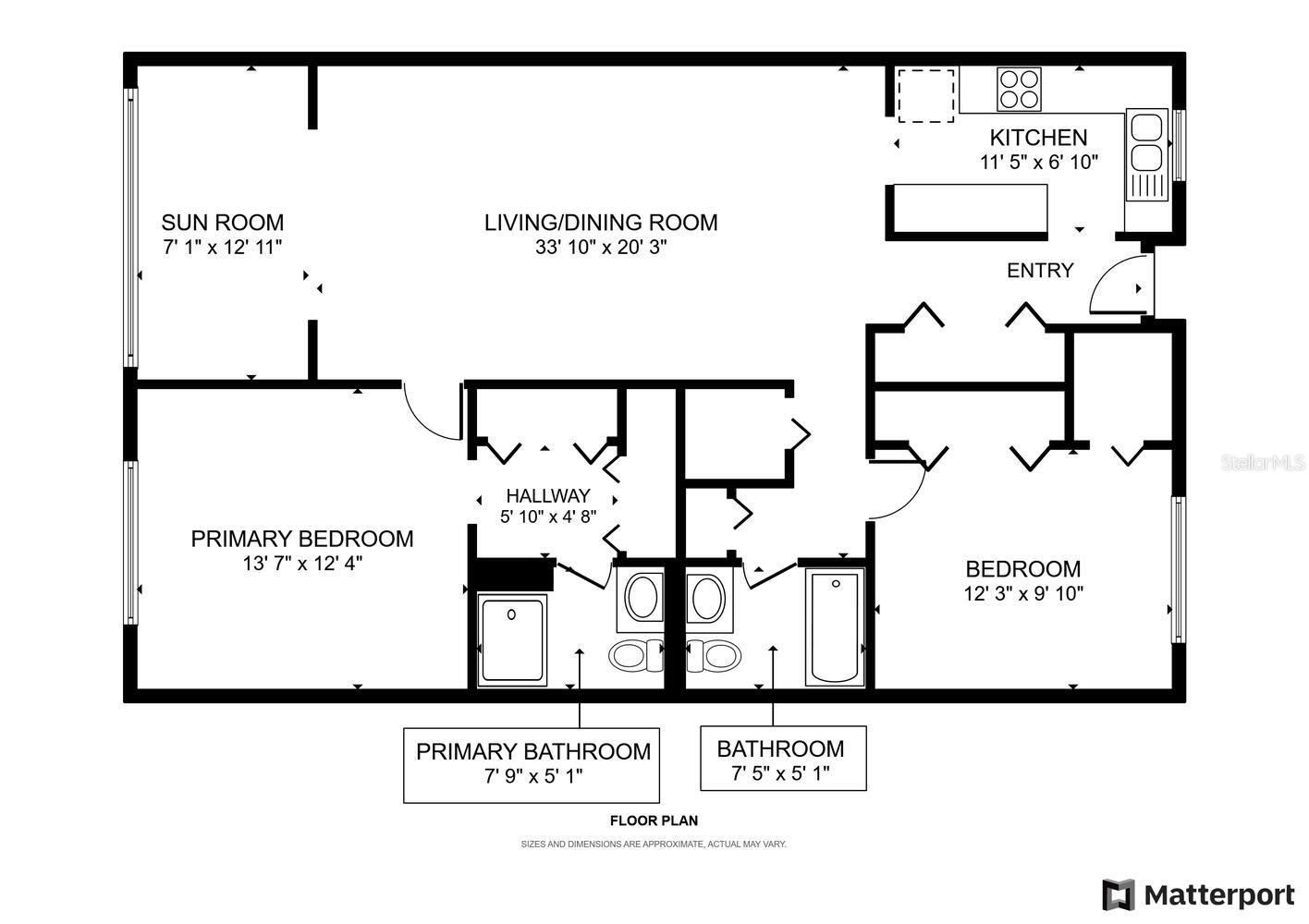
DescriptionWaterfront living top floor! Rent includes spectrum cable & internet, water/sewer, trash, pest control, pool, outdoor cooking area, waterfront pagoda, communal workshop and more! Welcome to a eagle's view from this top 9th floor condo unit over looking your unobstructed gulf access on the north channel of gulf harbors, just minutes from the gulf of mexico! Beautiful sunset views from this top floor unit and nothing less than paradise in this maintenance free community which is located in the beautiful city of new port richey. Featuring 2 bedrooms and 2 full bathrooms, a spacious 1050 sqft (fully enclosed porch has been opened into unit and is heated and cooled). Complete with storage unit and dual elevators. Large open floor plan with living dining combination and split bedroom plan. Tile flooring in kitchens and baths, laminate flooring in the entry and living dining area with carpeted bedrooms. Amenities include laundry facilities located at both ends of each floor in the building, an updated and fully secured lobby, security cameras, heated pool, grilling & gazebo area with tables and chairs, shuffleboard court, workshop, bicycle room, poker room, library, fishing pier, fish cleaning station, overflow parking area, laundry room and trash shoot on every floor. Community extras: boat, trailer, camper storage lot, additional storage closets, paddleboard/ kayak/ canoe/ bike storage, & boat slips are occasionally available at very reasonable yearly rate! Building has a new roof, updated fire alarms and has been freshly painted. Access to gulf harbor private beach, just 1 mile down the street is available for an additional membership of $200/yr, residents can also join the yacht club, fishing club, & boaters club! Public boat ramps, boat/ kayak rentals, fishing charters, parks, shopping, beaches, restaurants, entertainment, hospitals/ urgent care, sam's club are just a short bike ride away! Also available for an additional $250. 00 per month is a boat slip directly on the waterfront side of the complex. There is also a covered under the building parking space that can be rented with this unit for an additional $80. 00 per month paid annually. Be certain to schedule your showing today for this breathtaking view and maintenance free home!
Payment Calculator
- Principal & Interest -
- Property Tax $
- Home Insurance $
- HOA Fees $
- Monthly -
For a Fast & FREE Mortgage Pre-Approval
Apply Now
Apply NowFeatures
Building and Construction
- Covered Spaces: 0.00
- Exterior Features: Balcony, Sidewalk, Storage
- Fencing: Fenced, Partial
- Flooring: Carpet, Ceramic Tile, Laminate
- Living Area: 1050.00
- Other Structures: Storage
Property Information
- Property Condition: Completed
Land Information
- Lot Features: In County, Sidewalk, Paved
School Information
- High School: Gulf High-PO
- Middle School: Gulf Middle-PO
- School Elementary: Mittye P. Locke-PO
Garage and Parking
- Garage Spaces: 0.00
- Open Parking Spaces: 0.00
- Parking Features: Assigned, Ground Level, Guest, Reserved
Eco-Communities
- Water Source: Public
Utilities
- Carport Spaces: 0.00
- Cooling: Central Air
- Heating: Central, Electric
- Pets Allowed: No
- Sewer: Public Sewer
- Utilities: BB/HS Internet Available, Cable Available, Electricity Connected, Sewer Connected, Water Connected
Amenities
- Association Amenities: Cable TV, Elevator(s), Laundry, Lobby Key Required, Maintenance, Optional Additional Fees, Pool, Shuffleboard Court
Finance and Tax Information
- Home Owners Association Fee: 0.00
- Insurance Expense: 0.00
- Net Operating Income: 0.00
- Other Expense: 0.00
Rental Information
- Tenant Pays: Carpet Cleaning Fee, Cleaning Fee, Re-Key Fee
Other Features
- Appliances: Dishwasher, Microwave, Range, Refrigerator
- Association Name: Andrew George
- Association Phone: 727-726-8000
- Country: US
- Furnished: Unfurnished
- Interior Features: Ceiling Fans(s), Living Room/Dining Room Combo, Open Floorplan, Primary Bedroom Main Floor, Split Bedroom, Window Treatments
- Levels: Three Or More
- Area Major: 34652 - New Port Richey
- Occupant Type: Vacant
- Parcel Number: 18-26-16-0600-00000-9040
- Possession: Rental Agreement
- Unit Number: 904
- View: Water
Owner Information
- Owner Pays: Cable TV, Grounds Care, Internet, Management, Pest Control, Pool Maintenance, Recreational, Repairs, Security, Sewer, Trash Collection, Water
Similar Properties
Nearby Subdivisions
Beacon Lakes Condo 05
Beacon Lakes Condo 05b
Beacon Square
C E Crafts Sub
Colonial Hills
Colonial Manor
Flor A Mar
Flor A Mar Sec C07 Add 03
Floramar Section2a Pb 6 Pg 117
Gardens Beacon Square
Gardens Of Beacon Square
Grove Park
Gulf Coast Estates
Gulf Harbors Condo
Gulf Harbors Woodlands
Harbor Colony At Gulf Landings
Heather Cove
Heather Cove New Port
Imperial Embassy Condo
Jasmin Acres
Jasmin Court Sub
Jasmin Point Estates
Mariners Way At New Port
Melodie Hills 01
New Port Colony 05 Way
New Port Colony 07 Way
New Port Colony 09 Way
New Port Richey City
Not On List
Pinehurst Park Jm Mitchells Ad
Regency Palms Condos
Reserve At Sea Forest
Sea Castle Condo
Seaview Placegulf Lndgs
Shamrock Heights 04
South Blvd Twnhs
Spring Lake Estates
Trouble Creek Villas
Waters Edge
Windward Cove Condo
- Sara Oquendo, REALTOR ®
- Tropic Shores Realty
- Mobile: 352.428.8657
- saraoquendo1972@gmail.com





























































