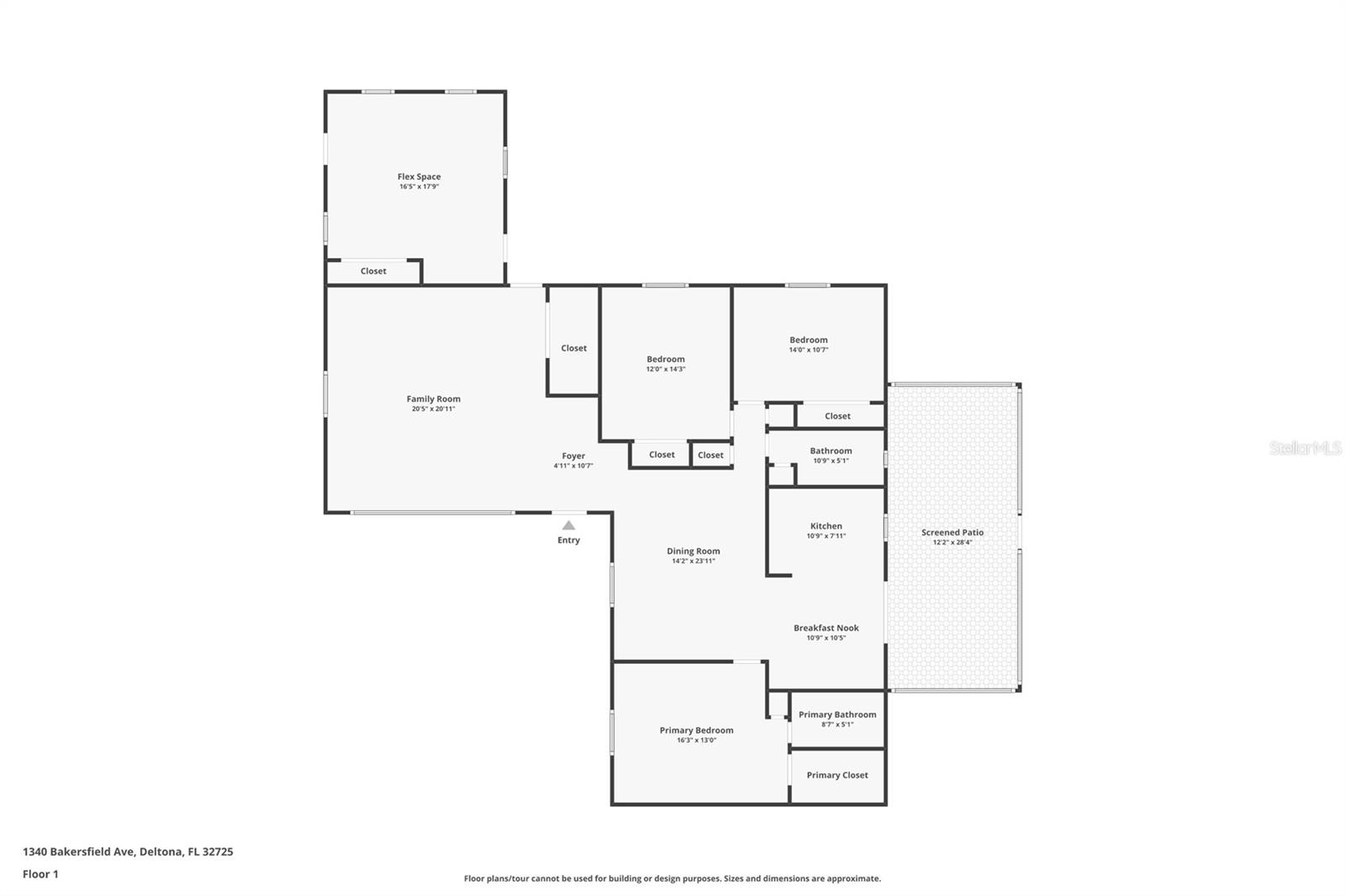
1340 Bakersfield Avenue, DELTONA, FL 32725
Active
Property Photos
Would you like to sell your home before you purchase this one?
Priced at Only: $300,000
For more Information Call:
Address: 1340 Bakersfield Avenue, DELTONA, FL 32725
Property Location and Similar Properties
- MLS#: O6307392 ( Residential )
- Street Address: 1340 Bakersfield Avenue
- Viewed: 8
- Price: $300,000
- Price sqft: $111
- Waterfront: No
- Year Built: 1974
- Bldg sqft: 2704
- Bedrooms: 3
- Total Baths: 2
- Full Baths: 2
- Days On Market: 263
- Additional Information
- Geolocation: 28.9002 / -81.2472
- County: VOLUSIA
- City: DELTONA
- Zipcode: 32725
- Provided by: RE/MAX CENTRAL REALTY
- Contact: Laura Forty-Garcia
- 407-333-4400

- DMCA Notice
-
DescriptionNestled in a peaceful Deltona neighborhood, this beautifully maintained 3 bedroom, 2 bath home offers comfort, style, and versatility. With a versatile layout and thoughtful updates, this property offers comfort, functionality, and room to grow. Step inside to find a bright and open living space with tile flooring throughout most of the homeexcluding the dining area, which adds a touch of warmth and character. The heart of the home includes a spacious living room and a dedicated dining area perfect for family meals or entertaining guests. A standout feature is the large bonus room with its own private entrance, offering endless possibilitiesideal for a home office, in law suite, gym, or creative studio. Both bathrooms have been recently renovated with fresh, stylish finishes that offer a clean and modern feel. Enjoy year round comfort with a newer A/C unit installed in March 2024, providing energy efficient climate control. The Roof was Done in November of 2015, Septic Tank & new Drainfield March 2019. Fresh interior and exterior paint make the home feel crisp and move in ready. Outdoors, the fully fenced backyard offers privacy and space for pets, play, or relaxing weekends. A handy storage shed provides extra room for tools, equipment, or hobbies. Situated in an established community with convenient access to local schools, parks, shopping, and commuter routes, this home checks all the boxes for space, updates, and value. Dont miss the opportunity to make this well cared for home your own!
Payment Calculator
- Principal & Interest -
- Property Tax $
- Home Insurance $
- HOA Fees $
- Monthly -
For a Fast & FREE Mortgage Pre-Approval
Apply Now
Apply NowFeatures
Building and Construction
- Covered Spaces: 0.00
- Exterior Features: Other
- Fencing: Chain Link
- Flooring: Ceramic Tile, Laminate
- Living Area: 2152.00
- Roof: Shingle
Garage and Parking
- Garage Spaces: 0.00
- Open Parking Spaces: 0.00
Eco-Communities
- Water Source: Public
Utilities
- Carport Spaces: 0.00
- Cooling: Central Air
- Heating: Electric
- Sewer: Septic Tank
- Utilities: Cable Available, Electricity Connected
Finance and Tax Information
- Home Owners Association Fee: 0.00
- Insurance Expense: 0.00
- Net Operating Income: 0.00
- Other Expense: 0.00
- Tax Year: 2024
Other Features
- Appliances: Dishwasher, Microwave, Range, Refrigerator
- Country: US
- Interior Features: Ceiling Fans(s), Walk-In Closet(s)
- Legal Description: LOT 23 & S 12 FT LOT 24 BLK 284 DELTONA LAKES UNIT 7 MB 25 PGS 149-162 INC PER OR 4856 PG 1216 PER OR 7168 PG 3969 PER OR 7292 PG 1242 PER OR 7328 PG 0525
- Levels: One
- Area Major: 32725 - Deltona / Enterprise
- Occupant Type: Vacant
- Parcel Number: 30-18-31-07-47-0230
- Style: Other
- Zoning Code: R-1
Similar Properties
Nearby Subdivisions
Arbor Rdg Un 5
Arbor Ridge
Autumn Woods
Deltoka Lakes Un 30
Deltona Lakes
Deltona Lakes Un 27
Deltona Lakes Unit 08
Deltona Lakes Unit 10 In 25 &
Deltona Lakes Unit 12
Deltona Lakes Unit 24
Deltona Lakes Unit 4
Hampton Oaks
Kensington Estates
Lake Baton Estates
Lake Gleason Reserve
Live Oak Estates
Magnolia Oaks
Not On The List
Orange City Estates Un 03
Pine Trace
Pine Trace Ph 02
Red Fox Run
Saxon Ridge
Saxon Ridge Ph 02b
Sterling Park
Stone Island Estates
Timbercrest
Vineland Reserve Ph 3
Wilsons 014 Sw 014
- Sara Oquendo, REALTOR ®
- Tropic Shores Realty
- Mobile: 352.428.8657
- saraoquendo1972@gmail.com






































