Sw Sunnybreeze Road, ARCADIA, FL 34269
Active
Property Photos
Would you like to sell your home before you purchase this one?
Priced at Only: $32,000,000
For more Information Call:
Address: Sw Sunnybreeze Road, ARCADIA, FL 34269
Property Location and Similar Properties
- MLS#: C7524295 ( Land )
- Street Address: Sw Sunnybreeze Road
- Viewed: 15
- Price: $32,000,000
- Price sqft: $0
- Waterfront: Yes
- Wateraccess: Yes
- Waterfront Type: River Front
- Year Built: Not Available
- Bldg sqft: 0
- Days On Market: 4
- Additional Information
- Geolocation: 27.0494 / -81.9881
- County: DESOTO
- City: ARCADIA
- Zipcode: 34269
- Subdivision: Peace River Highlands Ltd Mino
- Provided by: COLDWELL BANKER SUNSTAR REALTY
- Contact: Laura Frantz
- 941-225-4663

- DMCA Notice
-
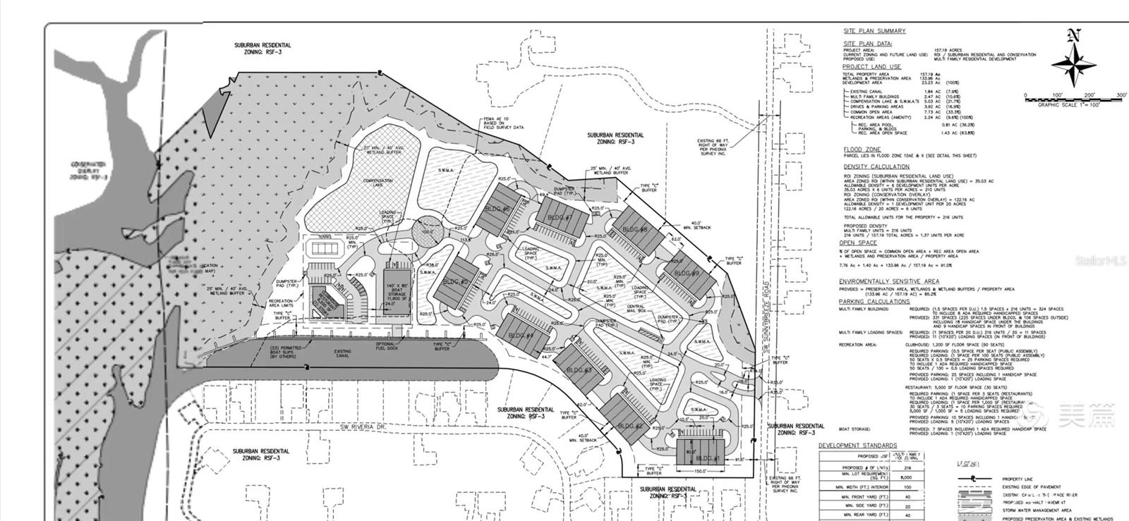
Description157 ACRES ON THE PEACE RIVER DEVELOPMENT OPPORTUNITY *Paradise Island* An exceptional opportunity to acquire 157 acres of unspoiled Old Florida beauty along the scenic Peace River. This rare offering combines natural waterfront charm with significant development potential, making it ideal for visionary builders, investors, or those seeking a legacy property. Approximately 27 acres of high and dry land provide a strong foundation for development, while the remaining acreage offers a stunning backdrop of native landscape, perfect for preserving natural aesthetics or creating a one of a kind eco focused project. Zoned ROI and A 5, the property allows for a wide range of possibilities including a private riverfront estate, boutique eco resort, residential development, or mixed use concept. Developers will appreciate the groundwork already in placeprevious approvals for up to 216 units offer a valuable head start for those looking to move forward with a residential project (documentation available upon request). Additionally, there is potential for up to 23 private docks, providing direct boating access to the river and out to the Gulf, a highly desirable feature in Southwest Florida waterfront communities. Infrastructure is within reach, with water and sewer nearby, enhancing the feasibility and cost efficiency of future development. Strategically located with convenient access to Arcadia, Port Charlotte, and Punta Gorda, the property also offers easy connectivity to regional travel hubs including Punta Gorda Airport and Southwest Florida International Airport. Whether you envision a luxury riverfront community, a serene eco retreat, or a private estate surrounded by nature, this property delivers the scale, location, and flexibility to bring your vision to life.
Payment Calculator
- Principal & Interest -
- Property Tax $
- Home Insurance $
- HOA Fees $
- Monthly -
For a Fast & FREE Mortgage Pre-Approval
Apply Now
Apply NowFeatures
Building and Construction
- Covered Spaces: 0.00
- Living Area: 0.00
Land Information
- Lot Features: Flood Plain/Bottom Land, Greenbelt, In County, Near Golf Course, Near Marina, Oversized Lot, Private, Room For Pool, Paved, Wooded
Garage and Parking
- Garage Spaces: 0.00
- Open Parking Spaces: 0.00
Eco-Communities
- Water Source: None
Utilities
- Carport Spaces: 0.00
- Pets Allowed: Yes
- Road Frontage Type: County Road
- Sewer: None
- Utilities: BB/HS Internet Available, Electrical Nearby, Sewer Nearby, Water Nearby
Finance and Tax Information
- Home Owners Association Fee: 0.00
- Insurance Expense: 0.00
- Net Operating Income: 0.00
- Other Expense: 0.00
- Tax Year: 2025
Other Features
- Country: US
- Current Use: Unimproved
- Legal Description: PARCEL C-1 MPDAF:BEG NE COR OF SEC 35 TH N 89D51M00S W ALG N SEC LI 1727.65 FT T0 W R/W SW SUNNYBREEZE RD FOR POB TH S 00 D54M00S W ALG SD R/W 1429.09 FT TP PT LYG 0.49 FT S 89D47M0 8S E OF PRM AT NE COR OF SUNNY BREEZE HARBOR SEC 10A TH N 89D 47M08S W 410.49 FT TO PRM AT SE COR LOT 20 BLK 1 SD SUB TH N 00D12M52S E 40 FT TO PC OF CURVE TH NLY ALG SD CURVE 60.03 FT TH N 42D47M08S W 198.95 FT TO PC OF CURVE TH NWLY ALG SD CURVE 257.78 FT TH SWLY ALG CURVE & NLY LI LOT 16 BLK 1 62.85 FT TH N 89D47M 08S W 828.59 FT TH SWLY ALG ARC OF CURVE 38.86 FT TO GOVT MEANDER LI OF LEFT BANK OF PEACE RIVER TH N 20D42M44S E 1219.08 FT TO GOVT MEANDER COR ON N LI SEC 35 TH S 88D18M20S E 393.50 FT TO N1/4 COR SEC 35 TH S 89D51M E 901.54 FT TO POB & ALSO
- Area Major: 34269 - Arcadia
- Parcel Number: 35-39-23-0000-0040-0000
- Possession: Close Of Escrow
- View: Park/Greenbelt, Trees/Woods, Water
- Views: 15
- Zoning Code: ROI
- Sara Oquendo, REALTOR ®
- Tropic Shores Realty
- Mobile: 352.428.8657
- saraoquendo1972@gmail.com





