1943 Shore Acres Boulevard Ne, ST PETERSBURG, FL 33703
Active
Property Photos
Would you like to sell your home before you purchase this one?
Priced at Only: $1,150,000
For more Information Call:
Address: 1943 Shore Acres Boulevard Ne, ST PETERSBURG, FL 33703
Property Location and Similar Properties
- MLS#: TB8497542 ( Residential )
- Street Address: 1943 Shore Acres Boulevard Ne
- Viewed: 1
- Price: $1,150,000
- Price sqft: $259
- Waterfront: No
- Year Built: 2025
- Bldg sqft: 4432
- Bedrooms: 4
- Total Baths: 4
- Full Baths: 3
- 1/2 Baths: 1
- Garage / Parking Spaces: 2
- Days On Market: 1
- Additional Information
- Geolocation: 27.8203 / -82.6012
- County: PINELLAS
- City: ST PETERSBURG
- Zipcode: 33703
- Subdivision: Shore Acres Edgewater Sec
- Elementary School: Shore Acres
- Provided by: THE TENPENNY COLLECTION
- Contact: Rachel Sartain Tenpenny
- 727-742-7939

- DMCA Notice
-
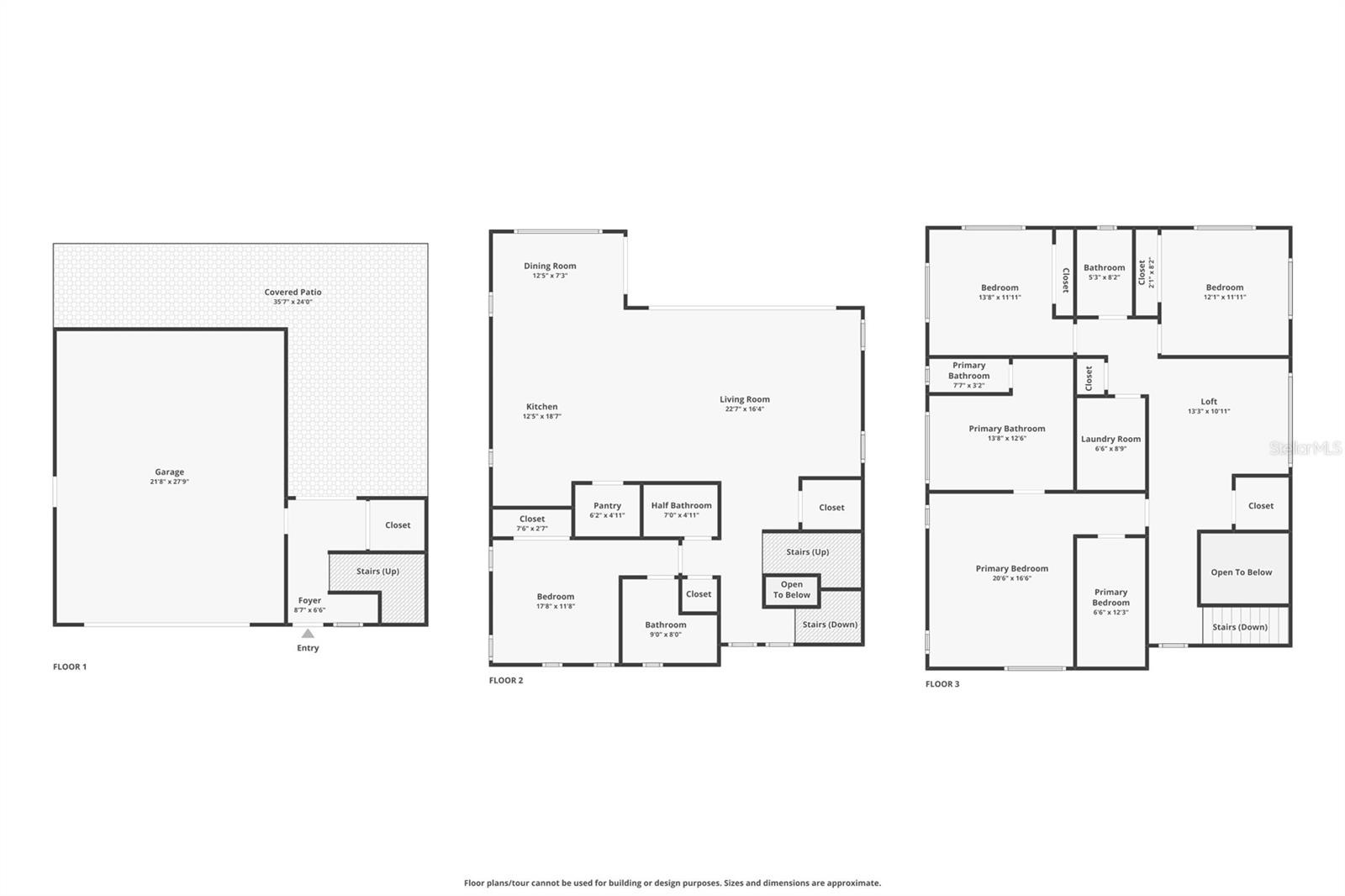
DescriptionElevated new construction in shore acres with main living at 14 feet above base flood elevation, impact windows and doors, elevator, and a pool sized backyard in one of ne st petersburgs most desirable locations completed in 2024, this 4 bedroom, 3. 5 bath elevated home offers approximately 3,005 heated square feet and is built to current code for improved insurability and long term durability. The main living level is elevated to 14 feet above sea level, well above the base flood elevation, and includes engineered flood vents at the ground level enclosure, providing a thoughtful approach to construction and peace of mind. The ground level includes an oversized two car garage with epoxy flooring, 10 foot ceilings, additional storage, and direct access to the home, along with elevator access to all levels. The main living area is positioned above the garage and features an open floor plan with 10 foot ceilings, 8 foot doors, and a large covered balcony off the living and dining areas, creating a natural extension of indoor and outdoor living. The kitchen is designed for both everyday use and entertaining with eurocraft cabinetry, quartz countertops, a bosch appliance package, walk in pantry, and a large island ideal for gatherings. Interior finishes include luxury vinyl plank flooring, walk in showers, swiss madison toilets, bronze finishes, and closet organizers throughout. The upper level includes a private primary suite with walk in shower, soaking tub, and double vanity, along with a loft or den space and a conveniently located laundry room. The floorplan is designed to provide open shared spaces while maintaining separation for privacy and flexibility, including a main level 4th bedroom, den, or home office. Outdoor features include a covered ground level lanai with electric ready for a future outdoor kitchen, a fully fenced backyard, and space for a pool. Sliding doors connect the main living space to the balcony, enhancing natural light and airflow. Located in shore acres, one of northeast st petersburgs most established neighborhoods, this home offers convenient access to downtown st petersburg, waterfront parks, and tampa bay. Nearby amenities include shore acres recreation center, speer ymca, mangrove golf course, denver park with tennis, pickleball, volleyball, and softball, as well as playgrounds, fishing areas, and walking paths. Everyday shopping and dining options, including publix, whole foods, fresh market, trader joes, starbucks, and target, are all within a short drive. Nearby schools include shore acres elementary, mangrove middle, st petersburg high, shorecrest, and canterbury.
Payment Calculator
- Principal & Interest -
- Property Tax $
- Home Insurance $
- HOA Fees $
- Monthly -
For a Fast & FREE Mortgage Pre-Approval
Apply Now
Apply NowFeatures
Building and Construction
- Covered Spaces: 0.00
- Exterior Features: Balcony, Private Yard, Sliding Doors
- Fencing: Vinyl
- Flooring: Luxury Vinyl
- Living Area: 3005.00
- Roof: Shingle
Property Information
- Property Condition: Completed
Land Information
- Lot Features: FloodZone, City Limits, Sidewalk
School Information
- School Elementary: Shore Acres Elementary-PN
Garage and Parking
- Garage Spaces: 2.00
- Open Parking Spaces: 0.00
Eco-Communities
- Water Source: None
Utilities
- Carport Spaces: 0.00
- Cooling: Central Air
- Heating: Central
- Pets Allowed: Yes
- Sewer: Public Sewer
- Utilities: Cable Available, Electricity Connected, Public, Sewer Connected, Sprinkler Recycled, Water Connected
Finance and Tax Information
- Home Owners Association Fee: 0.00
- Insurance Expense: 0.00
- Net Operating Income: 0.00
- Other Expense: 0.00
- Tax Year: 2025
Other Features
- Appliances: Convection Oven, Cooktop, Dishwasher, Disposal, Electric Water Heater, Exhaust Fan, Microwave
- Country: US
- Furnished: Unfurnished
- Interior Features: Accessibility Features, Ceiling Fans(s), Eat-in Kitchen, High Ceilings, Open Floorplan, Walk-In Closet(s)
- Legal Description: SHORE ACRES EDGEWATER SEC BLK 5, LOT 13
- Levels: Three Or More
- Area Major: 33703 - St Pete
- Occupant Type: Vacant
- Parcel Number: 33-30-17-81270-005-0130
- Possession: Close Of Escrow
- Style: Contemporary
Similar Properties
Nearby Subdivisions
Allendale Terrace
Arcadia Annex
Arcadia Gardens
Arcadia Sub
Bay State Sub
Bennington Sub
Crestwood
Crisp Manor
Curns W J Sub
Edgemoor Estates
Edgemoor Estates G H Rep
Edgemoor Estates Rep
Euclid Estates
Euclid Manor
Franklin Heights
Grovemont Sub
Harcourt
Lake Venice Shores
Laughners Sub
Monticello Park
Monticello Park Annex Rep
Moorefield Heights
New England Sub
North East Park Shores
North East Park Shores 4th Add
North Euclid Ext 1
North Euclid Oasis
North St Petersburg
Northeast Park
Overlook Drive Estate
Patrician Point
Placido Bayou
Poinsettia Gardens
Ponderosa Of Shore Acres
Ravenswood
Ravenswood Rep
Schroters Rep
Shore Acres Bayou Grande Sec
Shore Acres Butterfly Lake Rep
Shore Acres Connecticut Ave Re
Shore Acres Denver St Rep Bayo
Shore Acres Edgewater Sec
Shore Acres Edgewater Sec Blks
Shore Acres Overlook Sec
Shore Acres Sec 1 Twin Lakes A
Shore Acres Thursbys 2nd Rep
Shore Acres Venice Sec 2nd Pt
Shore Acres Venice Sec 2nd Rep
Shoreacres Center
Snell Gardens Sub
Snell Shores
Snell Shores Manor
Spring Hill Annex
Sycamore Park
Tbd
Venetian Isles
Waterway Estates Sec 1
Waterway Estates Sec 2
- Sara Oquendo, REALTOR ®
- Tropic Shores Realty
- Mobile: 352.428.8657
- saraoquendo1972@gmail.com

















































