20429 Lagente Circle, VENICE, FL 34293
Active
Property Photos
Would you like to sell your home before you purchase this one?
Priced at Only: $334,900
For more Information Call:
Address: 20429 Lagente Circle, VENICE, FL 34293
Property Location and Similar Properties
- MLS#: TB8433453 ( Residential )
- Street Address: 20429 Lagente Circle
- Viewed: 18
- Price: $334,900
- Price sqft: $147
- Waterfront: No
- Year Built: 2021
- Bldg sqft: 2274
- Bedrooms: 3
- Total Baths: 3
- Full Baths: 2
- 1/2 Baths: 1
- Garage / Parking Spaces: 1
- Days On Market: 120
- Additional Information
- Geolocation: 27.0536 / -82.3309
- County: SARASOTA
- City: VENICE
- Zipcode: 34293
- Subdivision: Gran Paradiso Twnhms 1b
- Elementary School: Taylor Ranch
- Middle School: Venice Area
- High School: Venice Senior
- Provided by: REDFIN CORPORATION
- Contact: Krisztina Juhasz
- 617-458-2883

- DMCA Notice
-
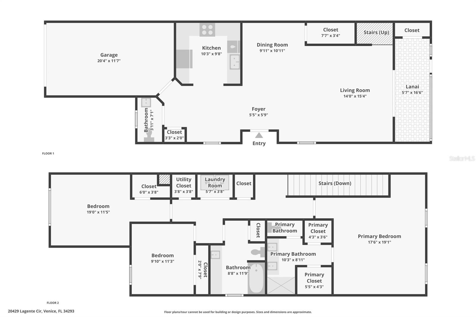
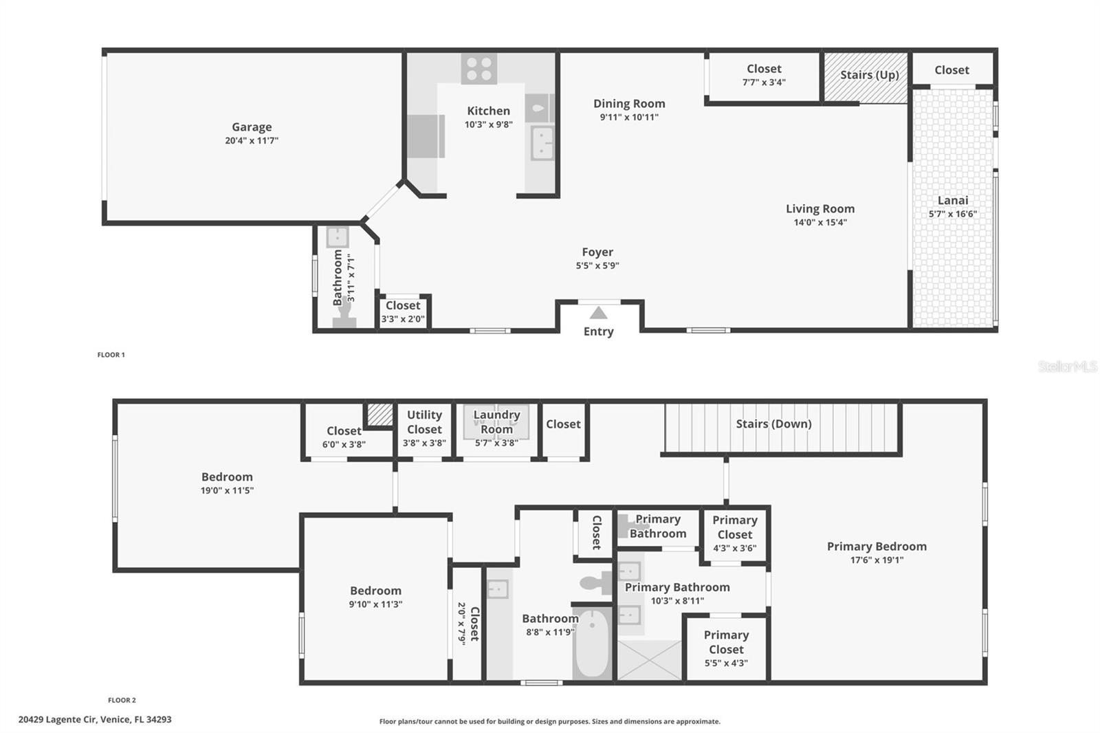
DescriptionThis charming corner townhome is designed for both comfort and style, starting with a welcoming paver walkway that leads to your private garage and front porch. Step inside and youre greeted by an open concept living area that feels bright, inviting, and perfect for both relaxing and entertaining. High end window treatments (a significant seller investment) convey elegance and offer privacy. This is a lightly used and impeccably maintained end unit Townhome. The living and dining spaces flow easily to a covered, screened lanai with pond views complete with an added shade to block the afternoon sun, making it the perfect spot for morning coffee or an evening glass of wine. The kitchen features granite countertops, stainless steel appliances, and a breakfast bar that keeps you connected while cooking or hosting. Upstairs, plush carpet leads you to the primary suite with two walk in closets, dual sinks, and a large walk in shower. Two additional bedrooms offer flexibility for guests, a home office, or hobbies, and share a full bath. Youll also love the convenience of the upstairs laundry closet, generous storage throughout the home, and peace of mind with a Ring camera already in place. For added value and security, all windows and doors are protected by hurricane shutters just installed in September 2025. Living in Gran Paradiso means more than just a beautiful home its a lifestyle. This 24 hour guard gated community offers an incredible array of resort style amenities, from the sparkling pool and fitness center with classes, to pickleball, tennis, and basketball courts. The clubhouse has something for everyone, including a library, craft room, billiards, ping pong, card rooms, plus steam and sauna facilities for total relaxation. With its ideal location in Venice, this home delivers both tranquility and convenience. Enjoy the turn key lifestyle and warm, welcoming community of this exceptional residence. Dont miss the chance to call this exceptional townhome your own the Gran Paradiso lifestyle is waiting for you!
Payment Calculator
- Principal & Interest -
- Property Tax $
- Home Insurance $
- HOA Fees $
- Monthly -
For a Fast & FREE Mortgage Pre-Approval
Apply Now
Apply NowFeatures
Building and Construction
- Builder Model: Ava
- Builder Name: Lennar
- Covered Spaces: 0.00
- Exterior Features: Hurricane Shutters, Rain Gutters, Sidewalk, Sliding Doors
- Flooring: Carpet, Tile
- Living Area: 1949.00
- Roof: Concrete, Tile
Land Information
- Lot Features: Landscaped, Sidewalk, Paved
School Information
- High School: Venice Senior High
- Middle School: Venice Area Middle
- School Elementary: Taylor Ranch Elementary
Garage and Parking
- Garage Spaces: 1.00
- Open Parking Spaces: 0.00
- Parking Features: Covered, Driveway, Garage Door Opener
Eco-Communities
- Pool Features: Other
- Water Source: Public
Utilities
- Carport Spaces: 0.00
- Cooling: Central Air
- Heating: Central, Electric
- Pets Allowed: Breed Restrictions, Number Limit, Yes
- Sewer: Public Sewer
- Utilities: Cable Available, Cable Connected
Amenities
- Association Amenities: Basketball Court, Cable TV, Clubhouse, Fence Restrictions, Fitness Center, Gated, Pickleball Court(s), Playground, Pool, Recreation Facilities, Sauna, Security, Spa/Hot Tub, Tennis Court(s), Vehicle Restrictions
Finance and Tax Information
- Home Owners Association Fee Includes: Cable TV, Pool, Internet, Maintenance Structure, Maintenance Grounds, Security
- Home Owners Association Fee: 831.00
- Insurance Expense: 0.00
- Net Operating Income: 0.00
- Other Expense: 0.00
- Tax Year: 2024
Other Features
- Appliances: Dishwasher, Dryer, Microwave, Range, Refrigerator, Washer
- Association Name: Castle Management
- Association Phone: 941-234-0450
- Country: US
- Interior Features: Ceiling Fans(s), Crown Molding, In Wall Pest System, Kitchen/Family Room Combo, Living Room/Dining Room Combo, Open Floorplan, Smart Home, Stone Counters, Thermostat, Walk-In Closet(s), Window Treatments
- Legal Description: LOT 168, GRAN PARADISO TOWNHOMES PHASE 1B, PB 51 PG 175-181
- Levels: Two
- Area Major: 34293 - Venice
- Occupant Type: Vacant
- Parcel Number: 0778111680
- View: Water
- Views: 18
Similar Properties
- Sara Oquendo, REALTOR ®
- Tropic Shores Realty
- Mobile: 352.428.8657
- saraoquendo1972@gmail.com








































