221 Gulf Boulevard A, PLACIDA, FL 33946
Active
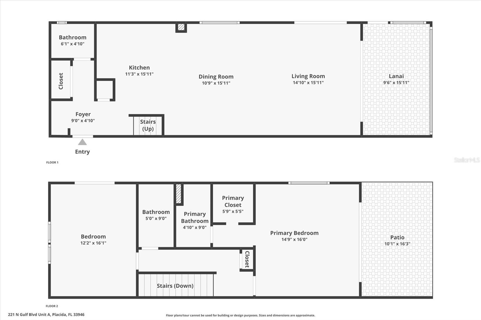
Property Photos
Would you like to sell your home before you purchase this one?
Priced at Only: $1,395,000
For more Information Call:
Address: 221 Gulf Boulevard A, PLACIDA, FL 33946
Property Location and Similar Properties
- MLS#: D6146245 ( Residential )
- Street Address: 221 Gulf Boulevard A
- Viewed: 4
- Price: $1,395,000
- Price sqft: $750
- Waterfront: Yes
- Wateraccess: Yes
- Waterfront Type: Beach Front
- Year Built: 1986
- Bldg sqft: 1860
- Bedrooms: 2
- Total Baths: 3
- Full Baths: 2
- 1/2 Baths: 1
- Days On Market: 10
- Additional Information
- Geolocation: 26.8725 / -82.3225
- County: CHARLOTTE
- City: PLACIDA
- Zipcode: 33946
- Subdivision: Palm Island Estates Un 1
- Provided by: PARADISE EXCLUSIVE INC
- Contact: Courtney DeFilippis
- 941-698-0303

- DMCA Notice
-
DescriptionDIRECT BEACHFRONT TOWNHOME on "Palm" Island! If youre dreaming of an island getaway with your toes in the sand instead of the snow, this beautifully renovated end unit townhome delivers the ultimate coastal escape. Located on magical Palm Island, along the sparkling Gulf of America, youll enjoy front row seats to breathtaking sunsets and miles of pristine, shell strewn white sand beaches. This 2 bedroom, 2.5 bath residence has been thoughtfully updated inside and out and is truly move in ready. Features include hurricane rated windows and sliders, a 2025 standing seam metal roof, Hardy Board siding, newer A/C, plumbing, electrical, and appliances, plus an open, inviting floor plan filled with natural light. Step outside to an expansive and private beachfront deckperfect for entertaining, dining, or simply soaking in the views. The primary suite also offers its own private deck, ideal for savoring nightly sunsets. Whether youre seeking a personal island retreat or a high performing investment property, this townhome checks all the boxes and has excellent rental potential. Palm Island is a bridgeless barrier island accessible by a short car ferry ride, preserving its laid back Old Florida charm. Once here, enjoy golf cart rides, kayaking, boating, fishing, biking, and long, peaceful beach walksfar from the hustle and bustle of everyday life.
Payment Calculator
- Principal & Interest -
- Property Tax $
- Home Insurance $
- HOA Fees $
- Monthly -
For a Fast & FREE Mortgage Pre-Approval
Apply Now
Apply NowFeatures
Building and Construction
- Covered Spaces: 0.00
- Exterior Features: Lighting, Sliding Doors
- Flooring: Ceramic Tile, Luxury Vinyl
- Living Area: 1486.00
- Roof: Metal
Land Information
- Lot Features: CoastalConstruction Control Line, FloodZone, In County
Garage and Parking
- Garage Spaces: 0.00
- Open Parking Spaces: 0.00
Eco-Communities
- Water Source: Public
Utilities
- Carport Spaces: 0.00
- Cooling: Central Air
- Heating: Central, Electric
- Sewer: Septic Tank
- Utilities: BB/HS Internet Available, Electricity Connected, Water Connected
Finance and Tax Information
- Home Owners Association Fee Includes: Other
- Home Owners Association Fee: 0.00
- Insurance Expense: 0.00
- Net Operating Income: 0.00
- Other Expense: 0.00
- Tax Year: 2025
Other Features
- Appliances: Dishwasher, Dryer, Electric Water Heater, Microwave, Range, Refrigerator, Washer
- Country: US
- Furnished: Negotiable
- Interior Features: Ceiling Fans(s), Eat-in Kitchen, Kitchen/Family Room Combo, Living Room/Dining Room Combo, PrimaryBedroom Upstairs, Solid Surface Counters, Thermostat, Window Treatments
- Legal Description: PIE 001 000A 0003A PALM ISLAND ESTATES UN 1 BLK A LT 3 LESS NW/LY 67.75 FT MEASURED AT RIGHT ANGLES TO COMMON LINE BETWEEN LTS 3 & 4 ALSO LESS NE/LY 75 FT MEASURED AT RIGHT ANGLES TO LINE COMMON TO LT 3 AND GULF BLVD AKA UNIT A OF UNREC SAVANNAH TOWN HOUSES 1091/1855
- Levels: Two
- Area Major: 33946 - Placida
- Occupant Type: Owner
- Parcel Number: 412031476017
- Possession: Close Of Escrow
- Style: Coastal, Elevated, Florida, Key West
- View: Water
- Zoning Code: BBI
Similar Properties
- Sara Oquendo, REALTOR ®
- Tropic Shores Realty
- Mobile: 352.428.8657
- saraoquendo1972@gmail.com














































