13136 58th Court, OCALA, FL 34473
Active
Property Photos
Would you like to sell your home before you purchase this one?
Priced at Only: $268,965
For more Information Call:
Address: 13136 58th Court, OCALA, FL 34473
Property Location and Similar Properties
- MLS#: OM722517 ( Residential )
- Street Address: 13136 58th Court
- Viewed: 7
- Price: $268,965
- Price sqft: $203
- Waterfront: No
- Year Built: 2026
- Bldg sqft: 1328
- Bedrooms: 3
- Total Baths: 2
- Full Baths: 2
- Garage / Parking Spaces: 2
- Days On Market: 6
- Additional Information
- Geolocation: 29.0313 / -82.2172
- County: MARION
- City: OCALA
- Zipcode: 34473
- Subdivision: Mcginley Landing
- Elementary School: Marion Oaks
- Middle School: Horizon Academy/Mar Oaks
- High School: West Port
- Provided by: DR HORTON REALTY OF WEST CENTRAL FLORIDA
- Contact: Jessica Cruz
- 352-414-3365

- DMCA Notice
-
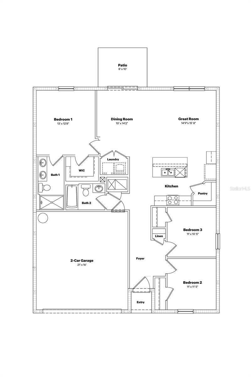
DescriptionUnder Construction. This single story, all concrete block constructed 3 bedroom, 2 bathroom home features an open concept floorplan that optimizes living space. The spacious kitchen overlooks the great room, dining area, and outdoor patio. The kitchen comes full equipped with stainless steel appliances including a built in dishwasher, range, and microwave. The primary suite is located towards the back of the home, featuring a spacious walk in closet and ensuite bathroom with double vanity sinks. Two additional bedrooms are located towards the front of the home and share a bathroom across the hall. Pictures, photographs, colors, features, and sizes are for illustration purposes only and will vary from the homes as built. Home and community information including pricing, included features, terms, availability and amenities are subject to change and prior sale at any time without notice or obligation. CRC057592.
Payment Calculator
- Principal & Interest -
- Property Tax $
- Home Insurance $
- HOA Fees $
- Monthly -
For a Fast & FREE Mortgage Pre-Approval
Apply Now
Apply NowFeatures
Building and Construction
- Builder Model: Archer II
- Builder Name: DR Horton INC
- Covered Spaces: 0.00
- Flooring: Carpet, Luxury Vinyl
- Living Area: 1328.00
- Roof: Shingle
Property Information
- Property Condition: Under Construction
School Information
- High School: West Port High School
- Middle School: Horizon Academy/Mar Oaks
- School Elementary: Marion Oaks Elementary School
Garage and Parking
- Garage Spaces: 2.00
- Open Parking Spaces: 0.00
Eco-Communities
- Water Source: Public
Utilities
- Carport Spaces: 0.00
- Cooling: Central Air
- Heating: Electric, Heat Pump
- Pets Allowed: Yes
- Sewer: Public Sewer
- Utilities: Other
Finance and Tax Information
- Home Owners Association Fee: 70.00
- Insurance Expense: 0.00
- Net Operating Income: 0.00
- Other Expense: 0.00
- Tax Year: 2025
Other Features
- Appliances: Dishwasher, Microwave, Range
- Association Name: Boyd Management Group
- Country: US
- Furnished: Unfurnished
- Interior Features: Open Floorplan
- Legal Description: SEC 09 TWP 17 RGE 21 PLAT BOOK 16 PAGE 146 MCGINLEY LANDING PHASE 1 LOT 29
- Levels: One
- Area Major: 34473 - Ocala
- Occupant Type: Vacant
- Parcel Number: 41200-56-029
- Zoning Code: PUD
Similar Properties
Nearby Subdivisions
1149marion Oaks
8marion Oaks Un Eleven
Aspire At Glen Aire
Aspire At Marion Oaks
Huntington Ridge
Mariaon Oaks
Marion Oak Un 10
Marion Oaks
Marion Oaks 01
Marion Oaks 02
Marion Oaks 03
Marion Oaks 04
Marion Oaks 05
Marion Oaks 06
Marion Oaks 10
Marion Oaks 11
Marion Oaks 2
Marion Oaks 5
Marion Oaks 6
Marion Oaks 7
Marion Oaks 9
Marion Oaks Glen Aire
Marion Oaks South
Marion Oaks Twelve
Marion Oaks Un #11
Marion Oaks Un 01
Marion Oaks Un 02
Marion Oaks Un 03
Marion Oaks Un 04
Marion Oaks Un 05
Marion Oaks Un 06
Marion Oaks Un 07
Marion Oaks Un 09
Marion Oaks Un 1
Marion Oaks Un 10
Marion Oaks Un 11
Marion Oaks Un 12
Marion Oaks Un 2
Marion Oaks Un 3
Marion Oaks Un 4
Marion Oaks Un 5
Marion Oaks Un 6
Marion Oaks Un 7
Marion Oaks Un 9
Marion Oaks Un Eight First Re
Marion Oaks Un Eight First Rep
Marion Oaks Un Eleven
Marion Oaks Un Five
Marion Oaks Un Four
Marion Oaks Un Nine
Marion Oaks Un One
Marion Oaks Un Sev
Marion Oaks Un Seven
Marion Oaks Un Six
Marion Oaks Un Ten
Marion Oaks Un Three
Marion Oaks Un Twelve
Marion Oaks Un Two Glen Aire P
Marion Oaks Unit 07
Marion Okas Un 11
Marions Oaks Un 10
Mcginley Landing
Neighborhood 9063
Neighborhood 9066
Not On List
Not On The List
Ocala Park Estates Un 04
Resi
Round Lake Usfs
Sec 04 Twp 17 Rge 21 Plat Book
Shady Road Acres
Shady Road Farms
Summerglen
Summerglen Ph 01
Summerglen Ph 02
Summerglen Ph 03
Summerglen Ph 04
Summerglen Ph 05
Summerglen Ph 06b
Summerglen Ph 1
Summerglen Ph 6a
Summerglen Ph 6b
Summerglen Ph I
Timberwalk
Turning Pointe Estate
- Sara Oquendo, REALTOR ®
- Tropic Shores Realty
- Mobile: 352.428.8657
- saraoquendo1972@gmail.com

































