518 Captiva Drive, DAVENPORT, FL 33896
Active
Property Photos
Would you like to sell your home before you purchase this one?
Priced at Only: $475,000
For more Information Call:
Address: 518 Captiva Drive, DAVENPORT, FL 33896
Property Location and Similar Properties
- MLS#: O6391482 ( Residential )
- Street Address: 518 Captiva Drive
- Viewed: 33
- Price: $475,000
- Price sqft: $242
- Waterfront: No
- Year Built: 2015
- Bldg sqft: 1959
- Bedrooms: 3
- Total Baths: 2
- Full Baths: 2
- Days On Market: 14
- Additional Information
- Geolocation: 28.2498 / -81.6313
- County: POLK
- City: DAVENPORT
- Zipcode: 33896
- Subdivision: Festival Ph 1replat
- Provided by: REDFIN CORPORATION
- Contact: Thomas Bayrouty, Jr
- 407-708-9747

- DMCA Notice
-
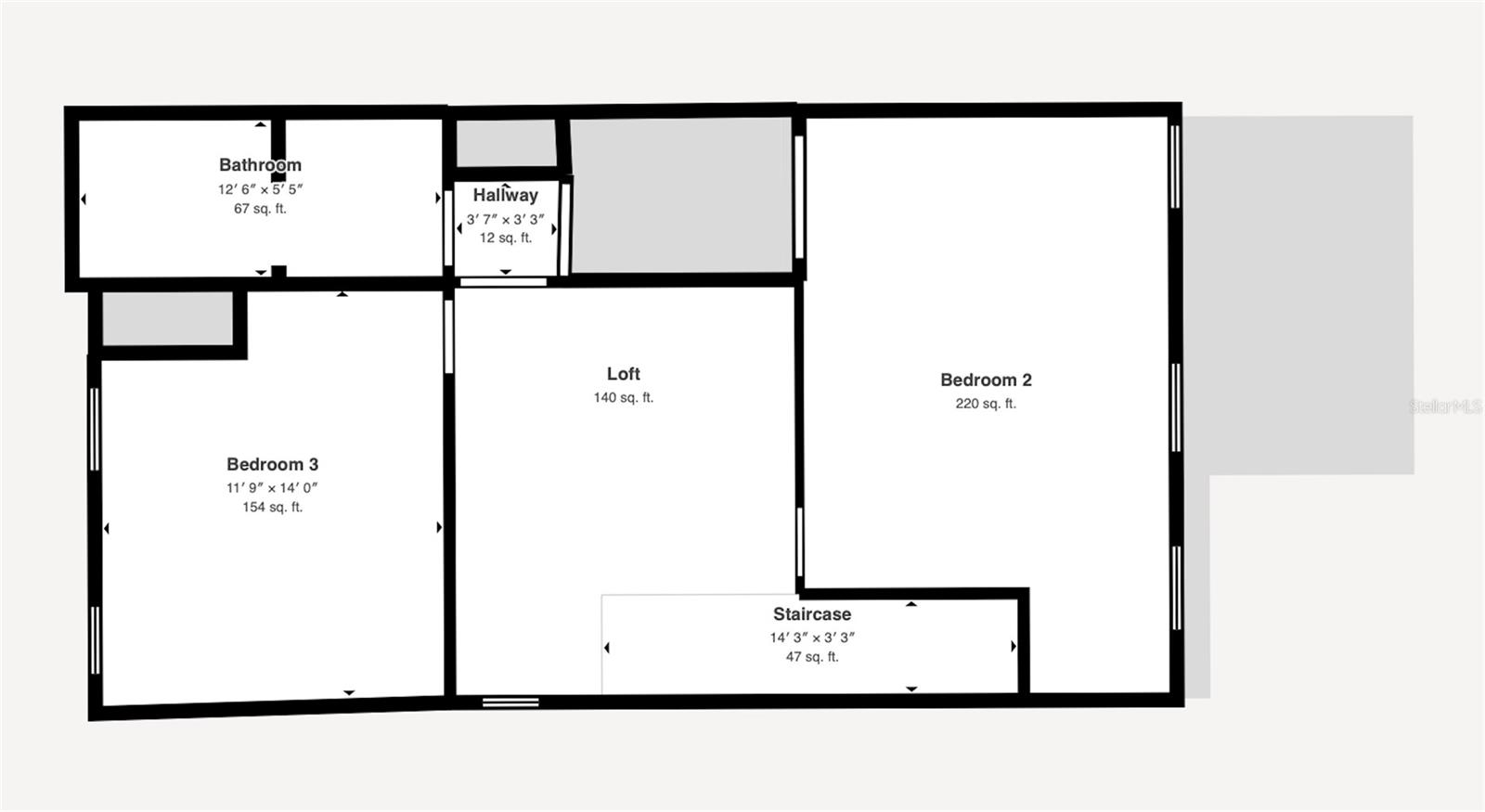
DescriptionThis amazing turnkey. .. Fully furnished. .. Previous builder model home is a perfect investment opportunity (zoned for both short term & long term renting) located in the well sought after luxury community at festival. You could even make this your very own vacation home! This end unit 3 bedroom, 2. 5 bathroom smart home has everything you need and more! It has been beautifully decorated to make you or your guests feel as if the vacation you have been waiting for is right there in your living room. As you enter the property you will find the spacious master suite to the right on the first floor with large windows letting in all that natural light! The master bathroom includes a double vanity with granite countertops and fully tiled enclosed shower. As you proceed down the hall you will enter the open concept floor plan that hosts the family room, kitchen and formal dining. The kitchen has all the room you need and more! It is equipped with stainless steel appliances and gorgeous granite countertops, farmhouse style pendant lighting over your huge center island with a breakfast bar overhang that has additional seating. You also have plenty of storage capability with the numerous white cabinets throughout. The kitchen also has elegant backsplash above the countertops as well as on the front facing wall of the center island to give that extra detail that ties everything together! Upstairs you will find a loft to be the center point of the second level which is great for additional entertaining or for everyone to hang out. In the front bedroom you will walk into a very spacious room that has two double bunk beds and plenty of space to move around. On the opposite side of the loft you will notice the additional full bathroom that also has a double vanity with granite countertops and a fully tiled enclosed shower. Next door is the final bedroom which has nice large furniture as well and still allows room to maneuver about. Step outside through the four section slider and enjoy your very own secluded private pooll! You can either relax under the large covered lanai escaping the florida sun or splash around without your neighbors seeing you with the help from the privacy walls on each side of the unit. Did i mention there are no rear neighbors? This unit is in one of the best locations in the community with convenient access to i 4. You have a serene landscape for a view in the back of the property and are across the street from all the amenities! Festival has a heated swimming pool with cabanas, motion sensor water park, a 18 hole putt putt golf course, beach style volleyball court, and fitness center! All of this is located within 30 minutes to disney making this property truly something magical!
Payment Calculator
- Principal & Interest -
- Property Tax $
- Home Insurance $
- HOA Fees $
- Monthly -
For a Fast & FREE Mortgage Pre-Approval
Apply Now
Apply NowFeatures
Building and Construction
- Covered Spaces: 0.00
- Exterior Features: Lighting, Rain Gutters, Sidewalk, Sliding Doors
- Flooring: Tile
- Living Area: 1771.00
- Roof: Tile
Garage and Parking
- Garage Spaces: 0.00
- Open Parking Spaces: 0.00
Eco-Communities
- Pool Features: Heated, In Ground, Screen Enclosure
- Water Source: Public
Utilities
- Carport Spaces: 0.00
- Cooling: Central Air
- Heating: Central, Electric
- Pets Allowed: Breed Restrictions, Number Limit, Size Limit, Yes
- Sewer: Public Sewer
- Utilities: Cable Available, Electricity Connected, Sewer Connected, Water Connected
Finance and Tax Information
- Home Owners Association Fee Includes: Cable TV, Pool, Internet, Maintenance Grounds, Pest Control, Recreational Facilities, Sewer
- Home Owners Association Fee: 498.00
- Insurance Expense: 0.00
- Net Operating Income: 0.00
- Other Expense: 0.00
- Tax Year: 2025
Other Features
- Appliances: Dishwasher, Dryer, Microwave, Range, Refrigerator, Washer
- Association Name: Access Residential Management LLC
- Association Phone: (407) 480-4200
- Country: US
- Furnished: Furnished
- Interior Features: Ceiling Fans(s), Crown Molding, Dry Bar, Eat-in Kitchen, Living Room/Dining Room Combo, Open Floorplan, Primary Bedroom Main Floor, Smart Home, Solid Surface Counters, Stone Counters
- Legal Description: FESTIVAL PHASE 1 - REPLAT PB 157 PG 29-30 LOT 95
- Levels: Two
- Area Major: 33896 - Davenport / Champions Gate
- Occupant Type: Vacant
- Parcel Number: 27-26-05-701154-000950
- Possession: Close Of Escrow
- Views: 33
Similar Properties
Nearby Subdivisions
Azur Residence
Azur Resort
Bellaviva
Bellaviva Ph 4
Belle Haven
Belle Haven Ph 1
Belle Haven Ph 2
Bridgewater Crossing Townhomes
Champions Pointe
Championsgate
Championsgate Condo 2 Ph 13 1
Championsgate Condo 2 Ph 13 &
Championsgate Condo 2 Ph 5
Championsgate Condo Ph 6
Enclaves At Festival Ph 1
Festival
Festival Ph 1
Festival Ph 1replat
Festival Ph 2
Festival Ph 3
Festival Ph 4
Festival Ph 5
Festival Phase 1
Festival Phase 2
Festival Phase 4
Festival Phase 5
Fountains At Championsgate Ph
Fountainschampionsgate Ph 1
Fox North
Lake Blufftown Center Eastph
Mandalay At Bella Trae Condo P
Mandalay At Bellatrae Ph 19 Bl
Oakmont Townhomes Phase 1
Stoneybrook South
Stoneybrook South North
Stoneybrook South North Parcel
Stoneybrook South North Pclph
Stoneybrook South North Prcl P
Stoneybrook South Ph I 1 J 1
Stoneybrook South Ph I1 J1
Stoneybrook South Ph J2 J3
The Azur Resort
The Vistas At Championsgate
The Vistas At Championsgate Ph
Tract X
Veranda At Bella Trae
Vistas At Championsgate
Vistaschampionsgate
Waterfordbridgewater
Windwood Bay Ph 01
- Sara Oquendo, REALTOR ®
- Tropic Shores Realty
- Mobile: 352.428.8657
- saraoquendo1972@gmail.com



































