917 Desert Mountain Court, REUNION, FL 34747
Active
Property Photos
Would you like to sell your home before you purchase this one?
Priced at Only: $1,399,000
For more Information Call:
Address: 917 Desert Mountain Court, REUNION, FL 34747
Property Location and Similar Properties
- MLS#: O6385657 ( Residential )
- Street Address: 917 Desert Mountain Court
- Viewed: 137
- Price: $1,399,000
- Price sqft: $274
- Waterfront: No
- Year Built: 2008
- Bldg sqft: 5108
- Bedrooms: 3
- Total Baths: 6
- Full Baths: 4
- 1/2 Baths: 2
- Garage / Parking Spaces: 3
- Days On Market: 52
- Additional Information
- Geolocation: 28.2801 / -81.6066
- County: OSCEOLA
- City: REUNION
- Zipcode: 34747
- Subdivision: Reunion West Village 03a
- Elementary School: Reedy Creek Elem (K 5)
- Middle School: West Side
- High School: Poinciana High School
- Provided by: THE JERRY BARKER GROUP LLC
- Contact: Alyssa Barker
- 407-756-7296

- DMCA Notice
-
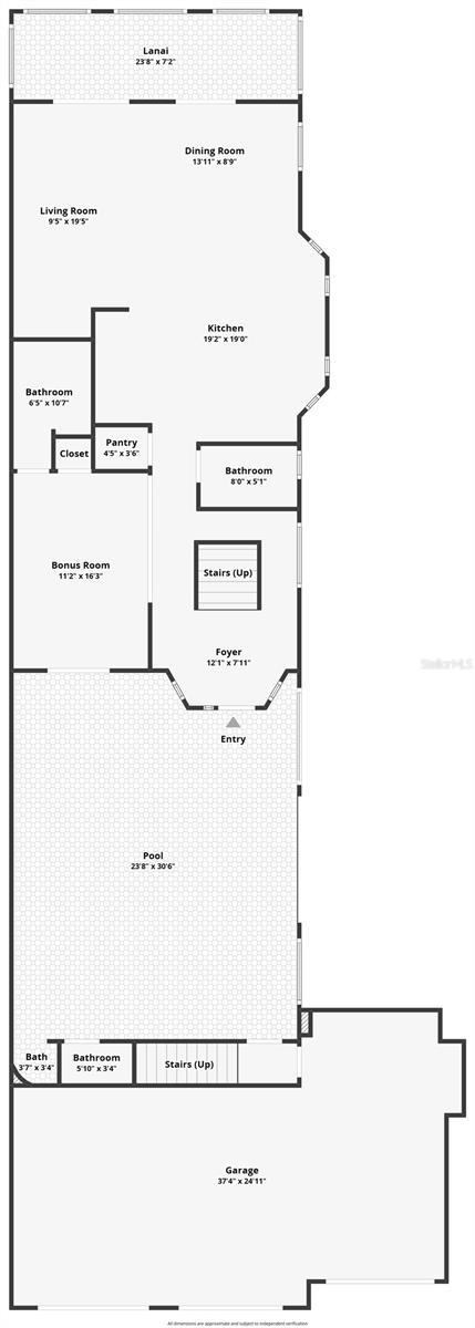
DescriptionPrivate residence with golf frontage on the first tee of Reunion Resorts Jack Nicklaus signature course. This ONE OF A KIND home blends Floridas natural exterior with globally sourced interior finishes. Premium oversized lot 78 X 155 with 58 easement to the South side. As you stroll up the stone walk, You are greeted on your way to the front door with a UV glass covered patio and newly refinished lap pool, drop down screens allow an extension of the interior of the home out. Inside, a six foot circular window allowing in an abundance of light. Italian porcelain flooring guided you to the kitchen and dining/living. There is a bedroom on the left with an en suite bath and accordion doors. The kitchen features custom cabinetry, dark granite countertops, gas and electric cooktops and a steamer, with high end appliances, complemented by marble and glass backsplashes, numerous round outlets, pendant lighting, and ample natural light from south facing windows and golf view doors. Custom cabinetry and millwork run throughout the home for symmetry. Curved stairs with a rounded glass banister lead to the second level. The master wing includes built in wardrobes, a spa like bathroom, and a private balcony with fairway views. A second bedroom and bath, plus an expansive open office with desks, shelving, a kitchenette, and an adjoining recreation room complete the upper level. The property has an active membership with access to Reunions three signature golf courses and waterpark. Contact us for a tour.
Payment Calculator
- Principal & Interest -
- Property Tax $
- Home Insurance $
- HOA Fees $
- Monthly -
For a Fast & FREE Mortgage Pre-Approval
Apply Now
Apply NowFeatures
Building and Construction
- Covered Spaces: 0.00
- Exterior Features: Balcony, Courtyard, Garden, Hurricane Shutters, Lighting, Outdoor Shower, Rain Gutters, Sidewalk, Sliding Doors
- Flooring: Carpet, Marble, Tile
- Living Area: 3584.00
- Roof: Concrete
School Information
- High School: Poinciana High School
- Middle School: West Side
- School Elementary: Reedy Creek Elem (K 5)
Garage and Parking
- Garage Spaces: 3.00
- Open Parking Spaces: 0.00
- Parking Features: Garage Door Opener, Oversized
Eco-Communities
- Pool Features: Heated, In Ground, Lap, Lighting, Outside Bath Access, Salt Water, Screen Enclosure
- Water Source: Public
Utilities
- Carport Spaces: 0.00
- Cooling: Central Air
- Heating: Electric, Natural Gas
- Pets Allowed: Yes
- Sewer: Public Sewer
- Utilities: BB/HS Internet Available, Cable Available, Electricity Connected, Natural Gas Connected, Sewer Connected, Water Connected
Finance and Tax Information
- Home Owners Association Fee Includes: Guard - 24 Hour, Cable TV, Pool, Internet, Maintenance Grounds, Management, Pest Control, Security
- Home Owners Association Fee: 571.00
- Insurance Expense: 0.00
- Net Operating Income: 0.00
- Other Expense: 0.00
- Tax Year: 2025
Other Features
- Appliances: Bar Fridge, Built-In Oven, Convection Oven, Cooktop, Dishwasher, Disposal, Dryer, Gas Water Heater, Microwave, Range Hood, Refrigerator, Tankless Water Heater, Washer, Water Filtration System, Wine Refrigerator
- Association Name: Artemis Lifestyles - John Kingsley
- Association Phone: 14077052190
- Country: US
- Furnished: Unfurnished
- Interior Features: Built-in Features, Ceiling Fans(s), Eat-in Kitchen, In Wall Pest System, Kitchen/Family Room Combo, Living Room/Dining Room Combo, PrimaryBedroom Upstairs, Smart Home, Solid Wood Cabinets, Stone Counters, Thermostat, Wet Bar, Window Treatments
- Legal Description: REUNION WEST VILLAGE 3A PB 16 PGS 136-141 LOT 48
- Levels: Two
- Area Major: 34747 - Kissimmee/Celebration
- Occupant Type: Vacant
- Parcel Number: 35-25-27-4892-0001-0480
- Views: 137
- Zoning Code: OPUD
Similar Properties
Nearby Subdivisions
Reunion Liberty Bluff
Reunion Grande Condo
Reunion Ph 01 Prcl 01
Reunion Ph 02 Prcl 03
Reunion Ph 1 Prcl 1
Reunion Ph 2 Parcel 1 1a
Reunion Ph 2 Prcl 1 1a
Reunion Ph 2 Prcl 1 And 1a
Reunion Ph 2 Prcl 11a
Reunion Ph 2 Prcl 3
Reunion Ph 23 Prcl 01 01a
Reunion Ph I Prcl 01 Un 03
Reunion Resort
Reunion Village Ph 3 Rep
Reunion West 17th 18th Fairwa
Reunion West Fairways 17 18
Reunion West Fairways 17 18 R
Reunion West Village 03a
Reunion West Village 3a
Reunion West Village 3b
Reunion West Village North
Reunion West Vlgs North
Spectrum At Reunion Ph 2
Villas At Reunion Square Condo
Villas At Reunion Square Ph 04
- Sara Oquendo, REALTOR ®
- Tropic Shores Realty
- Mobile: 352.428.8657
- saraoquendo1972@gmail.com


































































