2782 Armadale Drive, MOUNT DORA, FL 32757
Active
Property Photos
Would you like to sell your home before you purchase this one?
Priced at Only: $296,659
For more Information Call:
Address: 2782 Armadale Drive, MOUNT DORA, FL 32757
Property Location and Similar Properties
- MLS#: O6375649 ( Residential )
- Street Address: 2782 Armadale Drive
- Viewed: 25
- Price: $296,659
- Price sqft: $258
- Waterfront: No
- Year Built: 2026
- Bldg sqft: 1149
- Bedrooms: 2
- Total Baths: 3
- Full Baths: 2
- 1/2 Baths: 1
- Days On Market: 52
- Additional Information
- Geolocation: 28.8205 / -81.6365
- County: LAKE
- City: MOUNT DORA
- Zipcode: 32757
- Subdivision: Southloch
- Building: Southloch
- Elementary School: Round Lake Elem
- Middle School: Mount Dora
- High School: Mount Dora
- Provided by: TAYLOR MORRISON REALTY OF FLORIDA INC
- Contact: Michelle Campbell
- 407-756-5025

- DMCA Notice
-
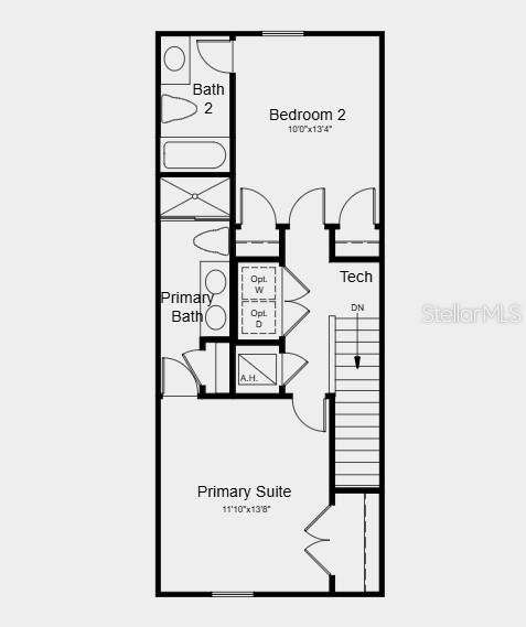
DescriptionUnder Construction. What's Special: Popular Plan | Gray Cabinets | Covered Lanai | Close to Amenities | West Facing Lot New Construction March Completion! Built by Taylor Morrison, America's Most Trusted Home Builder. Welcome to the Iris at 2782 Armadale Drive in Southloch! This thoughtfully designed townhome style condominium offers an easy, open layout filled with natural light. The kitchen flows seamlessly into the dining area and great room, creating a comfortable space for everyday living. A large rear lanai extends your living area outdoors, and a convenient powder room completes the main floor. Upstairs, a flexible tech space sits between the secondary bedroom, with its own private bath, and the spacious primary suite, which features an en suite bath and a large closet. The upstairs laundry room adds simple, day to day convenience. Southloch is a gated community designed for connection, comfort, and a vibrant lifestyle. Ideally located off US 441 near SR 429, SR 44, and SR 19, youre just minutes from historic downtown Mount Doracelebrated for its walkable streets, charming shops, lakeside views, and a full calendar of festivals that earn it the nickname Festival City. Planned amenities include a pool and cabana, peaceful hammocks, cornhole, a Nature Play Space, and a National Wildlife Federation Monarch Butterfly Garden, offering inviting places to relax and unwind. Golf enthusiasts will appreciate the nearby Country Club of Mount Dora with its championship 18 hole course. A future golf cart trail and sidewalk network will connect Southloch to the Country Club and a Publix anchored shopping center, making errands and recreation simple and enjoyable. You can spend weekends exploring local boutiques, dining downtown, or heading out on Lake Dora for boating and fishing across the scenic Harris Chain of Lakes. Additional Highlights Include: GE refrigerator, washer and dryer, and whole house blinds. Photos are for representative purposes only. MLS#O6375649
Payment Calculator
- Principal & Interest -
- Property Tax $
- Home Insurance $
- HOA Fees $
- Monthly -
For a Fast & FREE Mortgage Pre-Approval
Apply Now
Apply NowFeatures
Building and Construction
- Builder Model: Iris
- Builder Name: Taylor Morrison
- Covered Spaces: 0.00
- Exterior Features: Sliding Doors
- Flooring: Carpet, Ceramic Tile
- Living Area: 1087.00
- Roof: Shingle
Property Information
- Property Condition: Under Construction
School Information
- High School: Mount Dora High
- Middle School: Mount Dora Middle
- School Elementary: Round Lake Elem
Garage and Parking
- Garage Spaces: 0.00
- Open Parking Spaces: 0.00
- Parking Features: Assigned
Eco-Communities
- Water Source: Public
Utilities
- Carport Spaces: 0.00
- Cooling: Central Air
- Heating: Central
- Pets Allowed: Cats OK, Dogs OK, Yes
- Sewer: Public Sewer
- Utilities: Cable Available, Electricity Available, Fiber Optics, Fire Hydrant, Underground Utilities
Amenities
- Association Amenities: Fence Restrictions, Gated, Maintenance, Playground, Pool, Wheelchair Access
Finance and Tax Information
- Home Owners Association Fee Includes: Pool, Maintenance Structure, Maintenance Grounds, Other, Trash
- Home Owners Association Fee: 353.54
- Insurance Expense: 0.00
- Net Operating Income: 0.00
- Other Expense: 0.00
- Tax Year: 2025
Other Features
- Appliances: Dishwasher, Disposal, Dryer, Electric Water Heater, Microwave, Range, Refrigerator, Washer
- Association Name: Southlock HOA - Madison Clark
- Association Phone: 951-302-5315
- Country: US
- Furnished: Unfurnished
- Interior Features: Open Floorplan, Window Treatments
- Legal Description: Southloch Lot 1015
- Levels: Two
- Area Major: 32757 - Mount Dora
- Occupant Type: Vacant
- Parcel Number: NALOT001015
- Possession: Close Of Escrow
- Style: Craftsman
- Views: 25
Similar Properties
- Sara Oquendo, REALTOR ®
- Tropic Shores Realty
- Mobile: 352.428.8657
- saraoquendo1972@gmail.com

































